-
详细信息
Q911F电动内螺纹球阀产品说明
上海申弘阀门有限公司生产内螺纹电动球阀采用角行程电动执行器及内螺纹球阀组成,适用于两位切断、调节的场合。内螺纹电动球阀阀体与执行机构的连接采用直连方式,电动执行机构内置伺服系统,无须另配伺服放大器,输入4-20mA信号及220VAC电源即可控制运转。内螺纹电动球阀具有连线简单,结构紧凑、尺寸小、重量轻、阻力小、动作稳定可靠等优点。

球阀操作和使用:广泛适用于石油、化工、城市给排水等要求严格切断的工况。为了让法兰球阀产品用起来放心,选择正规的厂家购买产品是非常有必要的,并且为了安全起见,在操作的似乎一定要按照说明书的指导进行!如今的产品适应于很多行业,它本身具有很多优势,如下是对产品的相关信息的介绍:

执行标准如下:
1、球阀设计与制造:GB12237-89、API608、API 6D、JPI 7S-48、BS5351、DIN3357。
2、不锈钢法兰球阀尺寸:JB/T74~90(JB74~90)、GB9112~9131、HGJ44~76、SH3406、ANSI B16.5、JIS B2212~2214、NF E29-211、DIN2543。
3、铸钢球阀的结构长度:GB12221-89、ANSI B16.10、JIS B2002、NF E29-305、DIN3202。
4、铸钢不锈钢法兰球阀的检验主试验:JB/T 9092、API 598。

新型特点介绍:
1、适应恶劣工作环境
球阀只需要用旋转90度的操作和很小的转动力矩就能关闭严密。完全平等的阀体内腔为介质提供了阻力很小、直通的流道。通常认为球阀*适宜直接做开闭使用,但近来的发展已将球阀设计成使它具有节流和控制流量之用。上海申弘阀门有限公司主营阀门有:减压阀(气体减压阀,可调式减压阀,水减压阀球阀的主要特点是本身结构紧凑,易于操作和维修,适用于水、溶剂、酸和天然气等一般工作介质,而且还适用于工作条件恶劣的介质,如氧气、过氧化氢、甲烷和乙烯等。球阀阀体可以是整体的,也可以是组合式的。2、适用要求严格切断工况
轨道球阀是一种比较新型的球阀类别,它有着自身结构所独有的一些优越性,如开关无摩擦,密封不易磨损,启闭力矩小。这样可减小所配执行器的规格。配以多回转电动执行机构,可实现对介质的调节和严密切断。法兰球阀产品之所以被广泛使用,是因为它具有很多优点。而且随着社会的不断进步,产品在各方面得到质的飞跃。1)操作前须确认管路和阀已被冲洗过。
2)阀的操作按执行机构输入信号大小带动阀杆旋转完成:正向旋转1/4圈(90°)时,阀关断。反向旋转1/4圈(90°)时,阀开启。
3)当执行机构方向指示箭头与管线平行时,阀门为开启状态;指示箭头与管线垂直时,阀门为关闭状态。

执行机构可直接接收计算机或工业仪表等输出的4~20mADC或1~5VDC控制信号,220VAC电源,根据阀位反馈信号与设定值比较偏差对执行机构驱动电机进行智能步距调整(PID调节),以实现与执行机构配套的阀门或其他装置开度的精确定位,同时输出4~20mADC的位置反馈信号。其核心控制部件电子式伺服控制器应用现代数字技术,对DCS/PLC规范设计而成,集信号采集、处理、反馈、控制于一体。采用独创的电子制动电路并附加机械阻尼装置消除惯性,可瞬时停机,定位时无振荡,定位精度可达0.3%以上。可控硅输出,动作时间快,输出稳定,可靠性高。体积小,轻便宜人,性能可靠,配套简单,流通能力大,特别适合于介质是粘稠,含颗粒,纤维性质的场合。目前该阀广泛应用于食品,环保,轻工,石油,造纸,化工,教学和科研设备,电力等行业的工业控制系数。

Q911F电动内螺纹球阀主要技术参数
● 阀体
阀体形式 内螺纹精铸阀体 公称通径 DN6~100mm 公称压力 PN1.6、2.5、4.0、6.4 MPa;ANSI 150 300 600LB;JIS 10 20 30K 连接形式 管螺纹(G)、锥螺纹(NPT) 阀盖形式 一体式 压盖型式 压帽拧紧式 密封填料 V型聚四氟乙烯填料、含浸聚四氟乙烯石棉填料、石棉纺织填料、石墨填料 ● 阀内件
阀芯形式 O型球型阀芯 流量特性 快开特性 执行机构
执行器型号 CHR、3810R、DZW、HQ、PSQ电动执行机构 主要技术参数 电源电压:220V/50Hz、380V/50Hz、输入信号:4-20mA或1-5V·DC、输出信号:4-20mA·DC 防护等级:相当IP65(或IP67)、隔爆标志:ExdⅡBT4、手操功能:手柄 环境温度:-25~+70℃、环境湿度:≤95% ■ 主要零件材料
1 左阀体 WCB、CF8、CF8M、CF3M 2 阀座 PEFE、PPL、304、316 3 球体 WCB、CF8、CF8M、CF3M 4 密封圈 PTFE/金属石墨缠绕垫片 5 右阀体(中阀体) WCB、CF8、CF8M、CF3M 6 阀杆 2Cr13304、316、316L 7 填料压盖 WCB、CF8、CF8M、CF3M 公称通径DN(mm) 6 8 10 15 20 25 32 40 50 65 80 100 允许压差(MPa) ≤ 公称压力 动作范围 0~90° 泄露量Q 按GB/T4213-92,小于额定KV0.01% 基本误差 ±1% 回差 ±1% 死区 ≤1% ■内螺纹电动球阀Q911F 主要性能参数
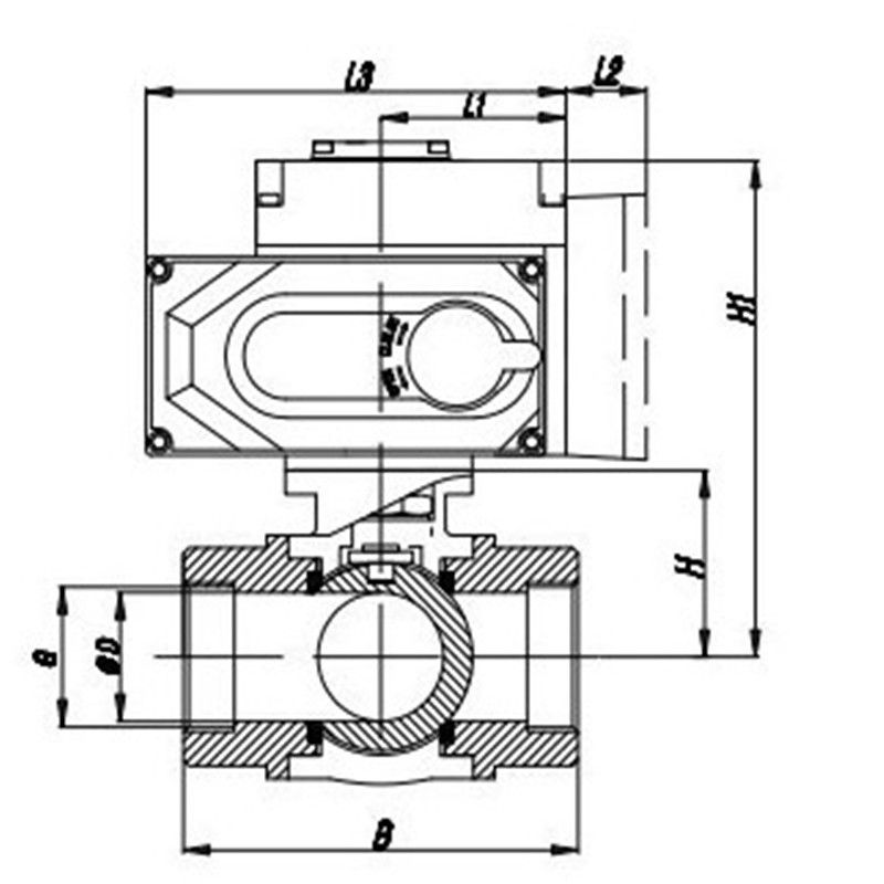
试验压力(Mpa) 公称压力(Mpa) 压力级(class) JIS(Mpa) 1.6 2.5 4.0 6.4 10.0 150 300 600 10K 20K 强度试验 2.4 3.8 6.0 9.6 15.0 3.1 7.8 15.3 2.4 3.8 密封试验 1.8 2.8 4.4 7.0 11.0 2.2 5.6 11.2 1.5 2.8 气密试验 0.5~0.7 ■内螺纹电动球阀Q911F主要外形及连接尺寸
公称通径 内螺纹连接 mm inch D L H G A 重量(Kg) 10 3/8 10 60 57 3/8″ 95 0.34 15 1/2 15 75 68 1/2″ 110 0.47 20 3/4 20 80 70 3/4″ 110 0.68 25 1 25 90 80 1″ 140 1.2 32 11/4 32 110 85 11/4″ 140 1.9 40 11/2 38 125 100 11/2″ 180 2.7 50 2 50 144 110 2″ 180 3.9 65 21/2 64 186 130 21/2″ 200 7.1 80 3 78 206 150 3″ 250 11.5 100 4 98 240 170 4″ 250 20.5 注:以上参数为不带标准附件数据,另由于产品改进技术创新参数可能有一定变化,请咨询公司技术部门索取*新数据。

Q911F电动内螺纹球阀维修事项:拥有较长的使用寿命和免维修期,将依赖以下几个因素:正常的工作条件、保持和谐的温度/压力比,以及合理的腐蚀数据
●球阀在关闭状态下,阀体内部依旧存在受压流体
●维修前,解除管线压力并使阀门处于打开位置
●维修前,断开电源或气源
●维修前,将执行机构与支架脱离
●必须先查明球阀上、下游管道确已卸除压力后,才能进行拆卸分解操作
●分解及再装配时必须小心防止损伤零件的密封面,特别是非金属零件,取出O型圈时宜使用专用工具
●装配时法兰上的螺栓必须对称、逐步、均匀地拧紧
●清洗剂应与球阀中的橡胶件、塑料件、金属件及工作介质(例如燃气)等均相容。工作介质为燃气时,可用汽油(GB484-89)清洗金属零件。非金属零件用纯净水或酒精清洗
●分解下来的单个零件可以用浸洗方式清洗。尚留有未分解下来的非金属件的金属件可采用干净的细洁的浸渍有清洗剂的绸布(为避免纤维脱落粘附在零件上)擦洗。清洗时须去除一切粘附在壁面上的油脂、污垢、积胶、灰尘等
●非金属零件清洗后应立即从清洗剂中取出,不得长时间浸泡
●清洗后需待被洗壁面清洗剂挥发后(可用未浸清洗剂的绸布擦)进行装配,但不得长时间搁置,否则会生锈、被灰尘污染

订货须知:
一、①产品名称与型号②口径③是否带附件以便我们的为您正确选型④使用压力⑤使用介质的温度。
二、若已经由设计单位选定公司的型号,请内螺纹电动球阀 型号直接向我司销售部订购。三、当使用的场合非常重要或环境比较复杂时,请您尽量提供设计图纸和详细参数,由我们的阀门公司专家为您审核把关。产品所属球阀选型,感谢您访问我们申弘阀门的网站如有任何疑问.您可以致电给我们,我们一定会尽心尽力为您提供优质的服务。如需要了解更多其它阀类产品的信息可以点击减压阀查看。
扫一扫,手机浏览


