-
详细信息
D363Y金属硬密封对焊式蝶阀 简介
我公司引进能够国外先进技术的基础上,采用精密的J形弹性密封圈和三偏心多层次金属硬密封结构,被广泛用于介质温度≤425℃的治金、电力、石油化工、以及给排水和市政建设等工业管道上,作调节流量和载断流体使用。该阀采用三偏心结构,阀座与碟板密封面均采用不同硬度和不锈钢制作,具有良好的耐腐蚀性,使用寿命长,本阀军邮双向密封功能,产品符合国家GB/T13927-92阀门压力试验标准。

对焊蝶阀的蝶板安装于管道的直径方向。在蝶阀阀体圆柱形通道内,圆盘形蝶板绕着轴线旋转,旋转角度为0°-90°之间,旋转到90°时,阀门则牌全开状态。采用金属密封的阀门一般比弹性密封的阀门寿命长,但很难做到完全密封。金属密封能适应较高的工作温度,弹性密封则具有受温度限制的缺陷。如果要求蝶阀作为流量控制使用,主要的是正确选择阀门的尺寸和类型。蝶阀的结构原理尤其适合制作大口径阀门。蝶阀不仅在石油、煤气、化工、水处理等一般工业上得到广泛应用,而且还应用于热电站的冷却水系统常用的蝶阀有对夹蝶阀和法兰式蝶阀两种。对夹式蝶阀是用双头螺栓将阀门连接在两管道法兰之间,法兰式蝶阀是阀门上带有法兰,用螺栓将阀门上两端法兰连接在管道法兰上。公称压力及公称直径相同的普通蝶阀和闸阀哪一个严密性比较好,不易漏水?闸阀的密闭性要比蝶阀的好一些,不过也有厂家的蝶阀密闭性能好的。
闸阀体积大,占用空间大。
蝶阀体积小,占用空间小。
具体选用的时候,还要考虑介质的温度、阀门的密封和填料。
规范规定公称直径大于50的用碟阀。
对焊蝶阀是国家级重点新产品,高性能的手动蝶阀采用了一个双偏心和一个特殊斜锥椭圆密封结构。解决了传统偏心蝶阀在启闭0°~10°瞬间密封面仍处于滑动接触摩擦的弊病,实现蝶板在开启瞬间密封面即分离,关闭接触即密封的效果,达到延长使用寿命、密封性能*佳的目的。

1.功能强劲:智能型、调节型、开关式。
2.体积小巧:体积仅相当于同类产品的35%左右。
3.使用方便:采用单相电源,接线简单;采用独创的球型凸出结构,使观察更方便;免加油免点检、防水防锈、任意角度安装。
4.保护装置有双重限位、过热保护、过载保护。全行程时间15秒、30秒、45秒、60秒。及带手动功能。
5.智能数控:内置模块采用先进计算机单片及智能控制软件直接接收计算机或工业仪表等输出的标准信号(4-20mA DC /1-5VDC)实现阀门开度的智能控制和精确定位。
也可选用3810系列或NA系列电子式角行程执行机构.亦可选用PSQ系列或DYR系列。≥DN 200口径阀门一般采用380VAC电动执行器。国内品牌如瑞基,澳托克,扬州电力,天二通,兰陵等;国外品牌有英国罗托克、法国伯纳德、德国瓯玛、德国西博思(西门子)等。
D363Y金属硬密封对焊式蝶阀特点:
1、采用三偏心蝶阀堪称顶尖过程阀门,此设计使阀门为高温、高压、防火应用中气泡级密封的理想硬密封蝶阀。
2、由于采用焊接结构,使阀门与管道平面达到永久性的零泄漏。
3、此阀无法兰,对管道和保温包扎带来了很大的方便和美观。采用标准
焊接尺寸:GB12224; ANSI B16.25; DIN2559
结构长度:GB/T12221-1989; API609
压力试验:GB/T13927-1992; API598

D363Y金属硬密封对焊式蝶阀主要技术参数
公称通径
DN(mm)
50~2000
公称压力
PN(MPa)
0.6
1.0
1.6
2.5
4.0
试验压力Ps(MPa)
强度试验
0.9
1.5
2.4
3.75
6.0
密封试验
0.66
1.1
1.76
2.75
4.4
气密封试验
0.6
0.6
0.6
0.6
0.6
适用介质
水、蒸气、油品、酸类腐蚀性等。
适用温度
碳钢 :-29℃~425℃ 不锈钢:-40℃~600℃
主要零件的材质
零件名称
材料
阀体
铸钢、不锈钢、铬钼钢及特殊材料
蝶板
铸钢、合金钢(镀硬铬)、不锈钢、铬钼钢及特殊材料
密封圈
不锈钢、抗磨材料
阀杆
2Cr13、1Cr13不锈钢、铬钼钢
填料
柔性石墨
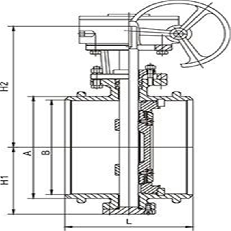
D363Y金属硬密封对焊式蝶阀D963W外形尺寸
公称压力
PN0.6
通径
外形尺寸(参考值)
参考重量(kg)
毫米
英寸
L
D
d
H
H1
A
B
600
24
390
636
602
499
1280
570
660
450
700
28
430
726
692
566
1480
750
550
660
800
32
470
826
792
632
1608
750
550
780
900
36
510
926
892
693
1857
750
550
820
1000
40
550
1028
992
757
2038
900
750
1460
1200
48
630
1228
1192
851
2237
1000
925
1590
1400
56
710
1428
1392
876
2411
1000
925
2185
1600
64
790
1628
1592
1095
2756
1000
925
3210
1800
72
870
1828
1792
1214
3093
1100
980
4090
2000
80
950
2028
1992
1332
3355
1100
980
5610
D363Y金属硬密封对焊式蝶阀主要技术参数
全焊接蝶阀主要零件的材质结构比较短小,占用空间小,安装的时候先用对夹式蝶阀专用法兰将其固定,然后将固定好的对夹式法兰放入管道两端法兰中间,用螺栓穿过对夹式蝶阀专用法兰和管道法兰将其固定。
具体安装步骤流程如下:
1、将对夹式蝶阀放置于预安装的两片对夹蝶阀专用法兰之间,注意将法兰螺栓孔与蝶阀阀体圆孔对齐。
2、将螺栓和螺母插入法兰孔将阀体与法兰连接,校正一下法里面的平整度,但注意不要把螺栓螺母拧的过紧。
3、将法兰焊接在管道上,这一步要采用点焊的方式。
4、先把对夹式蝶阀取下移出。
5、再将两片法兰完全焊在管道上,完成固定。
6、等法兰与管道的焊接处冷却之后,再讲对夹式蝶阀安装进去。此时注意要将蝶板打开一些。
7、再一次对蝶阀的安装位置做一个校正,拧紧螺栓,但要注意不要拧的过紧。
8、将蝶阀蝶板完全打开,保证蝶阀的蝶板可以自由启闭,能自由开闭。
9、再一次将螺栓交叉,均衡的拧紧;
10、以上步骤完成,再一次对蝶阀的启闭做一个测试,确保阀门可以自由的开关。

法兰式蝶阀安装方法
法兰蝶阀自带法兰,安装时候无需再专门配备法兰片,直接将阀体上的法兰与管道法兰用螺栓连接起来即可。但法兰蝶阀安装时要注意几点:
1.在安装时,蝶阀阀体法兰与管道上法兰之间的端面要平行,不能出现歪斜的情况,否则可能会因为螺栓拧不紧造成法兰连接处泄漏。
2.法兰蝶阀在管道上安装时候要在管道两端法兰与阀体法兰之间加入垫片,但不能用双垫片。
3.紧螺栓时要对称进行,两端法兰连接各个螺栓拧紧力要均匀且一致。
4.在安装时,要先安装蝶阀上定位孔的螺栓,将蝶阀位置对中固定,另外,在紧固法兰螺栓时,要对称交替拧紧,不要依次单独紧固螺栓。
相比对夹蝶阀,法兰蝶阀的密封性能更好,更适合做大口径阀门。但是使用成本和价格也会更高。法兰蝶阀的结构更长,占用的管道安装空间更大。
D363Y金属硬密封对焊式蝶阀安装方法:
1、法兰蝶阀安装前检查气动蝶阀各部分部件无缺失,型号无误,检查阀体内无杂物,电磁阀和消音器内无阻塞。
2、将阀门和汽缸均置于关闭状态。
3、将汽缸撞到阀门上,(安装方向与阀体平行或垂直都可以),再看螺丝孔是否对正,不会有太大偏差,如有少许偏差,将气缸体转动一点就可以了,然后将螺丝紧固。
4、安装完毕后,对气动蝶阀进行调试(正常情况下供气压力为0.4~0.6MPa),调试运行时须手动操作电磁阀启闭(将电磁阀线圈失电后手动操作方可有效),观察气动蝶阀的启闭情况。如果在调试运行过程中发现阀门在启闭过程初始时有些吃力,之后正常,则需要将气缸行程调小(把气缸两端行程调节螺丝同时往里调一点,调整时需将阀门运行到开位置,然后将气源关掉再调),直至阀门启闭动作顺滑且关闭无泄漏。还需要注意的是,可调型消音器可以调节阀门的启闭速度,但不可调得过小,否则可能引起阀门不动作。
5、得发在安装前应保持干燥,不可露天存放。
6、安装蝶阀前要检查管道,确保管道内无焊渣等异物。
7、蝶阀阀体手动启闭阻力适中,蝶阀扭矩与所选执行器扭矩匹配。
8、蝶阀连接用法兰规格正确,管道对夹法兰与蝶阀法兰标准相符。建议使用蝶阀专用法兰,不得使用平焊法兰。
9、确认法兰焊接无误,蝶阀安装完毕后不得再焊接法兰,以免烫伤橡胶件。
10、装好的管道法兰要进行对中,并与放入的蝶阀进行对中。
11、装上所有的法兰螺栓,并用手拧紧,将确认蝶阀与法兰已然对中,然后小心的启闭蝶阀,确保启闭灵活。
12、将阀门完全开启,用扳手按照对角线次序将螺栓拧紧,无需垫圈,切勿将螺栓拧的过紧,以防造成阀圈的严重变形,启闭扭矩过大。

订货须知:
一、产品名称与型号口径是否带附件以便我们的为您正确选型使用压力使用介质的温度。
二、若已经由设计单位选定公司的放料阀型号,请型号直接向我司销售部订购。
三、当使用的场合非常重要或环境比较复杂时,请您尽量提供设计图纸和详细参数,由我们的阀门公司专家为您审核把关。如有疑问:请:我们一定会尽心尽力为您提供优质的服务。
扫一扫,手机浏览


